De Meelfabriek, Meelfabriekplein 2a, 2312 LK Leiden, Nederland
Zuid-Holland
Adviesbureau, Ingenieursbureau
3D
Niet gecertificeerd
BIM Register nieuwsbrief
BIM bouwkunde
Neem contact op met het bedrijf

BIM bouwkunde is een bureau gespecialiseerd in brede, flexibele dienstverlening voor zowel particulieren als bouwprofessionals, zoals architecten, aannemers, ontwikkelaars, woningcorporaties, bouwmanagementbureaus en overheden.

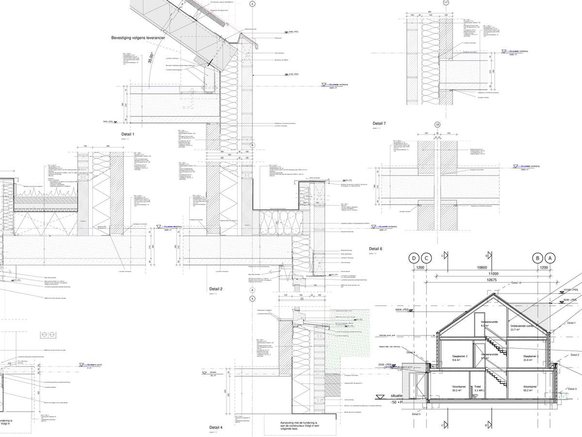
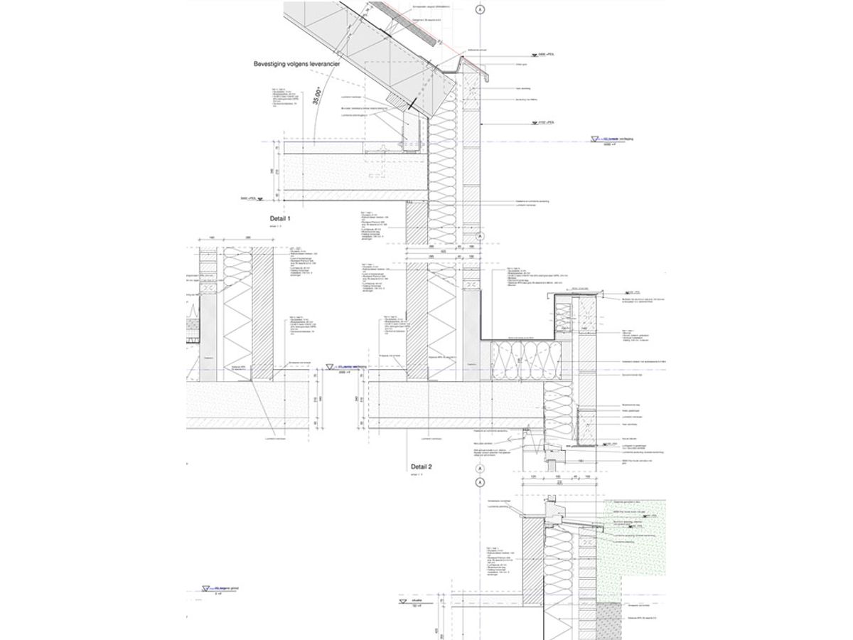
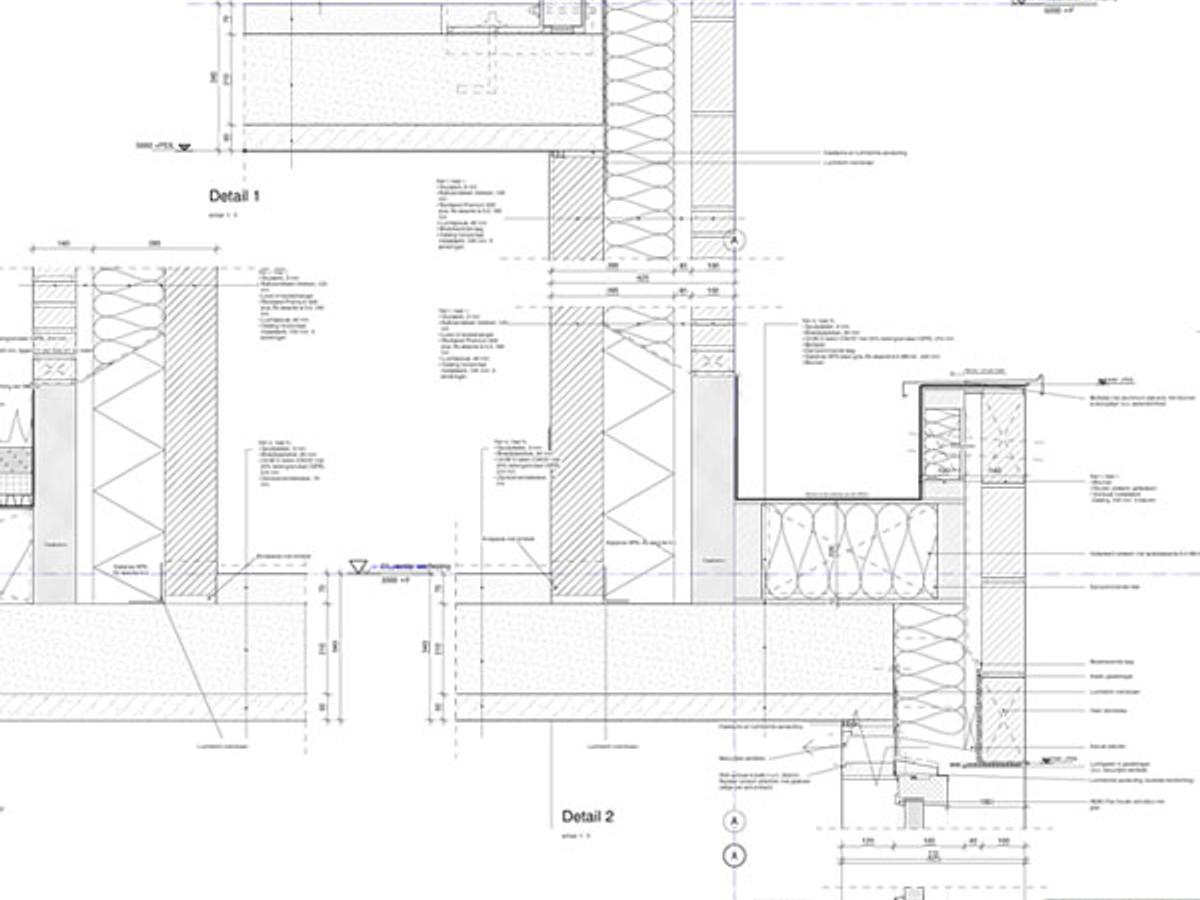
De tekenaars / BIM modelleurs van BIM bouwkunde zijn zeer ervaren. Zij verzorgen de bouwkundige uitwerking van aangeleverde ontwerpen. Standaard worden alle tekeningen in Revit als 3D model opgezet. Afhankelijk van de vraag, de grootte en complexiteit van het ontwerp worden tekeningen in 2D of als 3D-model aangeleverd. Bij grotere projecten kunnen we in samenwerking met de constructeur en installateurs een compleet virtueel BIM-model maken, waarin tot in detail – inclusief constructie en installaties – het ontwerp is uitgewerkt en faalkosten tot een minimum worden beperkt.

Onze dienstverlening is gebaseerd op het leveren van maatwerk en wordt geheel afgestemd op de vraag/wensen van particulieren en bouwprofessionals.

#replace title#